MODEL FI-PM

Bladder Tank Tipi Oranlayıcı

Oranlayıcılar

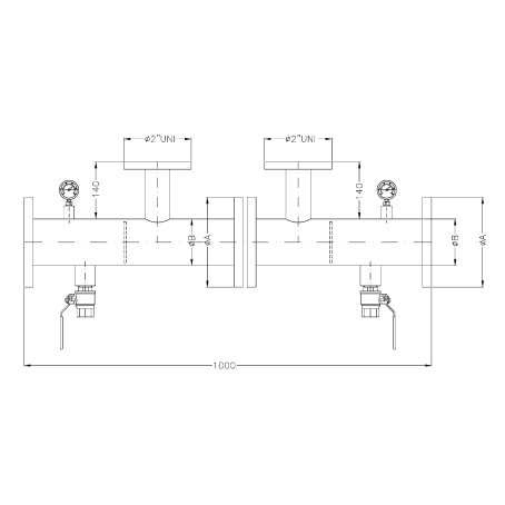
Sabit tip oranlayici köpük sistemlerinde sabit bir oranla köpük konsantrasyonunu sağlamak için tasarlanmıştır. Ürün düşük viskoziteli köpük ile kullanılmak üzere tasarlanmış olup minimum ve maksimum akış hızı aralığı 1:6'dır. Bu aralık kullanılan köpük türüne ve belirli çap bazında minimum veya maksimum akış hızına bağlı olarak değişebilir. Doğru karıştırıcı işlemi garanti etmek için karıştırıcıdan önce ve sonra en az beş çap uzunluğunda düz boru gereklidir. Oranlayıcı ters basınç mantığıyla çalışır ve köpük tankından veya pompadan pompalanan köpüğü belirlenmiş delik çapından köpük kurulumuna istikrarlı bir şekilde akıtır. Oranlayıcı köpükü %1-%3-%6 konsantrasyonlarında oranlar. Yaygın olarak kullanılan Sprinklerler, Nozullar, Monitörler, Köpük Yapıcılar ve Köpük üretici odaları bulunur. Her sabit tip oranlayıcının fabrikada doğru bir şekilde kalibre edilmiş olması gerekmektedir.

Fierre

Ürün Özellikleri

Onaylar
EN, CE
Bağlantı
UNI veya ANSI
Maks. Çalışma Basıncı
12 Bar

Not: Yukarıdaki veriler, mikserden en iyi performansı elde etmek için Fierre tarafından önerilmektedir. İstenilen tüm farklı veriler, performansları optimize etmek için Fierre tarafından tasarlanacaktır.

Dökümanlar

İlgili ürünler

Whatsapp Icon
Phone Icon
اتخن امراة فى العالم كله porndot.info دكتور ينيك المريضة
panjab x video pornudetube.mobi soundarya sex
سكس الجامعات nimila.mobi نيك في المدرسة
how heavy are the dumbells you lift hentai younghentai.net hentai monga
indian girl cum in mouth zotporn.net housewife fucked
gana.com hindi glossytube.mobi namsteporn
gaurav gogoi penytube.mobi sex sis bro
bengali blue picture video tubeband.mobi gonzo xxx japanese sex
centaur hentai manga adulthentai.net melancholy princess
andhra porn videos qporn.mobi hot nagma
indian cuckold twitter pornswille.com haryanavi sex video
tamil auntys sex videos analporntrends.com mumbai red street
شرموطه عين شمس arabysexy.org صباح سكس
clip ages.com borwap.pro xxx vidoso
the broken marriage vow may 31 2022 teleseryepinoytv.com ang probinsyano june 17 2022 abs cbn